Cargando...
Lanzarote Property 360
COMPRA/VENTA ALQUILER ALQUILER VACACIONAL
Idioma
English Deutsch Français Italiano Dansk Nederlands Português Čeština русский 中國的


La Santa, Tinajo, Lanzarote

Apartamento en venta
Apartamento venta en La Santa, Tinajo, Lanzarote.
<
>
PRÓXIMAMENTE
Imprimir cartel
215.000€

¡Nuevo Proyecto! Apartamentos de 2 dormitorios en La Santa disponibles en 2026/2027 desde 215,000€

Una maravillosa oportunidad para comprar a partir de los planes, nuevos apartamentos en el popular pueblo de La Santa.

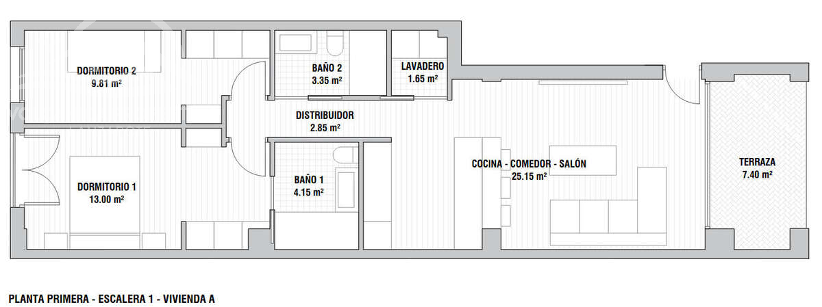
Habrá 9 apartamentos en total en el edificio con precios desde 215.000€ hasta 225.000€ (IGIC no incluido). Cada uno constará de 2 dormitorios, 2 baños, una sala de estar de planta abierta con cocina y comedor. Una terraza privada, con acceso a un garaje subterráneo con una plaza de aparcamiento asignada y un trastero. Un diseño moderno y funcional con productos de alta calidad y buen gusto.

El desarrollo está previsto que comience a finales de 2024 con la fecha de finalización en 2025.

La Santa tiene una gran demanda por parte de surfistas, entusiastas del deporte y aquellos que quieren disfrutar de la comodidad y el encanto de un pueblo tradicional de Lanzarote. A sólo 5 km de Tinajo, un corto trayecto en coche a la playa de Famara y aproximadamente 25 minutos del aeropuerto. La Santa está estrechamente asociada con el Resort Deportivo Internacional, Club La Santa.

RESUMEN:
Nueva construcción
2 dormitorios
2 baños
Terraza privada
Garaje subterráneo con 1 plaza
Trastero
Cerca de tiendas, restaurantes, parque infantil y skate park
Punto de surf de renombre mundial y popular destino deportivo
Gran demanda de alquiler
Referencia:
501383
Superficie:
70m²
Dormitorios:
2
Garaje:
Comunitario (1 plazas)
Terrazas:
1 (7.30m²)
Situación:
Cerca de la playa, Zona Residencial
Vistas:
Al mar, Al campo, A la montaña
Suelos:
Cerámica
Tipo ventanas:
Aluminio
Trastero:
Num. de plantas:
1
Num. vecinos edificio:
8
Estilo:
Moderno
Año de construcción:
2026 (0 año/s)
Estado conservacion:
A estrenar

Fotos

Haz click sobre las fotos para verlas ampliadas:

Situación

Contacto

Información sobre propiedad

Por favor, completa los datos del formulario para enviar tu consulta:

Destinatario

Asunto

Mensaje

Nombre

Telefono

Email

Referencia



Código de seguridad



Volcanica Properties
https://www.volcanicaproperties.com/
Tfn (+34)679.906.475
Facebook


Profesionales


Cómo anunciarte
Inmobiliarias
Contacta
RSS

©2017 Lanzarote Property360
Artek Soluciones Informáticas.
C. Doña Micaela Hernández, 1. Oficina 2.
Arrecife de Lanzarote.

Política de privacidad