Cargando...
Lanzarote Property 360
COMPRA/VENTA ALQUILER ALQUILER VACACIONAL
Idioma
English Deutsch Français Italiano Dansk Nederlands Português Čeština русский 中國的


Playa Blanca, Yaiza, Lanzarote

Local comercial en venta
Local comercial venta en Playa Blanca, Yaiza, Lanzarote.
<
>
NOVEDAD
Imprimir cartel
320.000€

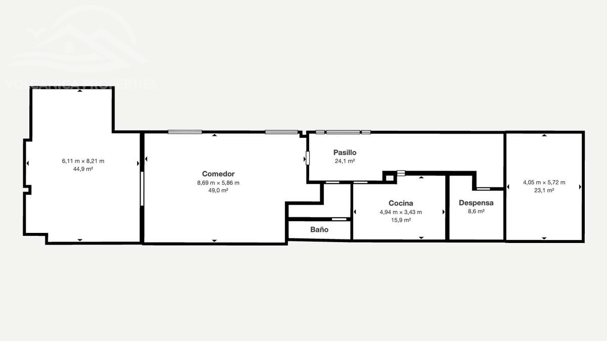
Local comercial con terrazas en excelente ubicación en Playa Blanca

Este local comercial de 107 m² con dos terrazas se encuentra en el Centro Comercial Yaiza, en el
animado centro de Playa Blanca.
Originalmente diseñado como restaurante, el inmueble cuenta con una zona de entrada, dos
habitaciones independientes (an guamente almacén y cocina), un baño para invitados con dos
aseos y un salón principal de aproximadamente 50 m² con acceso a una terraza cubierta de 37 m²
orientada al oeste. Además, en la parte trasera del local hay otra terraza cubierta orientada al este.
Gracias a su ubicación en la calle principal Calle Don Jaime Quesada El Maestro, el local goza de una
excelente visibilidad tanto para residentes como para turistas. Esto ofrece un amplio abanico de
posibilidades de uso, como restaurante, oficina, gimnasio o comercio.
El local está actualmente cerrado y necesita algunas reformas, lo que brinda al comprador la
libertad de adaptar el inmueble a sus propias ideas.

Resumen:
A un paso del centro de Playa Blanca

Posible inversión inmobiliaria

2 terrazas de 37 m² + 23 m²

Uso comercial
Referencia:
611879 - IEJO
Superficie:
107m²
Terrazas:
2 (60.00m²)
Num. de plantas:
1
Año de construcción:
1986 (40 año/s)
Estado conservacion:
Bueno
Sector actividad:
Comercio, Restaurantes, Salud

Fotos

Haz click sobre las fotos para verlas ampliadas:

Situación

Contacto

Información sobre propiedad

Por favor, completa los datos del formulario para enviar tu consulta:

Destinatario

Asunto

Mensaje

Nombre

Telefono

Email

Referencia



Código de seguridad



Volcanica Properties
https://www.volcanicaproperties.com/
Tfn (+34)679.906.475
Facebook


Profesionales


Cómo anunciarte
Inmobiliarias
Contacta
RSS

©2017 Lanzarote Property360
Artek Soluciones Informáticas.
C. Doña Micaela Hernández, 1. Oficina 2.
Arrecife de Lanzarote.

Política de privacidad